新築35坪の間取り成功実例!理想の家を建てる際のポイントも解説
記事
ハウマガ編集部

\ Information /新築35坪の間取り成功実例!理想の家を建てる際のポイントも解説
Contents
「35坪って狭い?」
「無駄のない間取りでおしゃれにしたいけど、予算も気になる……」
35坪という面積があれば、多様な間取りが可能。
⽣活スタイルに合わせて柔軟に設計でき、4LDKの総2階や憧れの平屋まで理想の間取りを実現しやすい広さです。
だからこそ、理想を詰め込みすぎて予算オーバーしたり、逆に一部だけを妥協したり。
実は一番「悩みどころ」が多いサイズでもあります。
この記事では、広く見える間取りのコツからランドリールームの作り方、35坪の相場まで、後悔しないポイントを「TSKさんいん中央テレビ」住宅部門が本音で解説します。
35坪の広さはどれくらい?

35坪は家族が快適に過ごすのに十分にゆとりがあるスペースです。
リビング、キッチン、ダイニングなどの共⽤スペースもゆったりとし、また個室もそれぞれ適度な広さを確保できます。
また、おしゃれなオープンキッチンやランドリールームといったトレンド設計も無理なく取り入れられます。
他にも、吹き抜けにして広く見える間取りにしたり、明るい南玄関にしたりなど、こだわりも実現しやすい広さです。
広すぎて掃除やメンテナンスに追われることもなく、かといって窮屈さも感じない。
家族の理想を最もバランスよく叶えられるサイズだと言えるでしょう。
35坪の家に必要な土地の面積
35坪の家を建てる際、「建ぺい率(土地面積に対して、建物を真上から見たときの面積割合)」を考慮した土地の広さが必要です。
建ぺい率に関係するのは「延床面積」ではなく「1階部分の面積(建築面積)」です。
例えば、同じ延床面積35坪でも、「2階建て」か「平屋」かによって、必要な土地の広さは大きく異なります。平屋はワンフロアで35坪を使い切るため、2階建てよりも広い土地が必要です。
【建ぺい率別の必要な土地面積(延床35坪の場合)】
| 延床35坪の住宅 | 1階の面積 | 必要な土地面積 | ||
|---|---|---|---|---|
| 建ぺい率40% | 建ぺい率50% | 建ぺい率60% | ||
| 総2階(2階建て) | 約17.5坪 | 約44坪 | 約35坪 | 約30坪 |
| 平屋 | 約35坪 | 約88坪 | 約70坪 | 約59坪 |
建ぺい率は30%〜80%の範囲でエリアごとに定められています。
ただし、実際に家を建てる時には、数字上の計算だけでなく、駐車スペース、日当たり、隣家との距離などを考慮しないと思わぬトラブルになるリスクもあるため、専門家と相談しながら現実的なプランを立てるのがおすすめです。
一戸建ての平均的な延床面積

35坪(約116平米)は、畳に換算すると「約70帖分」。住宅金融支援機構「2024年 フラット35利用者調査」によると、全国の住宅面積平均は118.5㎡なので、35坪は新築一戸建て住宅の平均的なサイズです。

35坪の間取りで狭いと感じられる方は少なく、今の暮らしやすさと将来のメンテナンス性を両立できる絶妙な広さです。
平屋の平均的な延床面積
平屋の延床面積は約20坪から30坪が一般的で、コンパクトながらも家族のニーズに合わせた柔軟なプランニングが可能なサイズです。
こちらは平屋30坪の間取り例です。

2階建ての一戸建てでは、どうしても「約4〜5帖分のスペース」を階段や上下階の廊下に取られてしまいます。しかし、平屋ならそのすべてを居住空間に回せるため、居住性は数字の差以上のゆとりを感じられます。
そのため、平屋で35坪あれば、平均よりも贅沢な間取りを実現できます。
新築35坪のおすすめな間取り実例

35坪の間取りは、その広さを活かしたさまざまなスタイルが可能です。
ここでは、多様な実例をもとに、住まいのデザインや使い方の参考を紹介していきます。
間取り事例①:ランドリールームを完備した平屋
35坪の平屋なら、重い洗濯物を持って階段を上がる必要がありません。
ランドリールームから直接ウッドデッキへ出られる動線を作れば、外干しも室内干しも自由自在。ワンフロアだからこそ叶う水平動線が、毎日の家事を劇的にスムーズにします。
サンルームを併設すれば、花粉や梅雨の時期でも天気を気にせず、空間をすっきり保てるのも平屋ならではの贅沢な使い方です。
間取り事例②:サンルームが魅力的な2階建て
35坪の戸建てでは、1階にLDK、2階に寝室や子供部屋と階ごとに役割を分けることで、家族のプライバシーと共有の時間を両立できます。
さらに、吹き抜けを活用すれば、明るく風通しの良い開放的な住空間が叶います。
また、天候を気にせず過ごせるサンルームは、植物を育てたり、くつろぎの場としても最適。
バルコニーを設けて外の空気を感じるなど、2階建てならではの利点を活かして、家族が集まる場所を心地よく演出できるのが魅力です。
間取り事例③:家事動線の確保で暮らしやすく
35坪の家で特に人気なのが、忙しい朝の時間を10分短縮できるような「立ち止まらない」動線です。例えば、キッチン・洗面室・クローゼットを一直線に結ぶレイアウト。
朝食の準備をしながら洗濯機を回し、そのまま隣のクローゼットへ服を収納。この「最短ルート」が、慌ただしい毎日にゆとりを生み出します。
キッチンに立ったとき、リビングまで視線が抜ける設計にすれば、家事をしながらお子さんの様子も見守れて安心です。
間取り事例④:4LDKの間取りでゆったり空間
35坪あれば、家族の人数が多い家庭でも、LDKを中心に、子供部屋や主寝室、さらには書斎など、用途に合わせた個室をしっかり確保できる4LDKを叶えられます。
また、各部屋に十分な収納スペースも設置可能。
最近は、リビングの一角に在宅勤務や勉強に集中できるワークスペースの設置も人気です。
食事とリラックスタイムを分けるようなメリハリのある設計にも十分対応できる広さなので、家族それぞれのライフスタイルに寄り添った、満足度の高い間取りを実現できます。
間取り事例⑤:吹き抜けで開放感たっぷり
吹き抜けを設けた35坪の戸建ては、圧倒的な開放感と明るさが魅力。
リビングの天井を高くして上部から光を採り入れる設計は、空間をより広く魅力的に見せてくれます。
また、階段を併設すれば、上下階が緩やかにつながり家族の気配を感じやすくなります。
来客時にも開放的な印象を与えられるほか、吹き抜けの壁一面にアクセントウォールを施すことで、インテリアデザインの主役にもなります。
間取り事例⑥:大容量シューズクロークで玄関をいつも美しく
35坪の広さを活かして大容量のシューズクロークを設ければ、玄関周りを常にすっきりと保てます。
靴はもちろん、ベビーカーやアウトドア用品なども丸ごと収納できるため、急な来客時でも慌てる必要がありません。
最近では、入り口をお客さまと家族用で分ける「2way動線」も人気です。
さらに、クローゼットから洗面台やキッチンへ直接抜けられるルートを作れば、帰宅後の手洗いや荷物の片付けもスムーズに。常に玄関を美しく保てます。
新築で理想の35坪の家を建てるためのポイント

35坪の家を建てる際に効率的な生活を実現するために、次のポイントを押さえて検討しましょう。
ポイント①:延床面積を効率的に利用する
35坪という広さを最大限に活かすには、空間を無駄なく使い切る工夫が欠かせません。
例えば、L型キッチンを採用してオープンなLDKにすれば、調理スペースを広く確保しつつ、家族が集まりやすい開放的な空間が生まれます。
また、敷地面積に限りがある場合は、3階建てという選択肢も有効です。
1階を玄関と大型収納、2階をゆったりしたLDK、3階を個室群といった具合に、階ごとに役割を明確に分ければ、生活動線が重ならず、家族それぞれのプライバシーを大切にしながら心地よく過ごせます。
さらに、階段下のデッドスペースを収納に変えたり、壁面収納を活用したりすると、生活空間がスッキリと整い、よりゆとりある住まいになります。
ポイント②:水回りの配置を工夫する
35坪の家を賢く建てるなら、キッチン・お風呂・洗面所などの水回りを一箇所にまとめる配置を検討しましょう。
これは家事効率だけでなく、設計面でも大きなメリットがあります。
・配管コストの削減:水回りを集約することで配管工事がシンプルになり、新築時の施工費用を抑えられます。
・メンテナンス性:将来的な配管の点検や修理がしやすくなり、維持管理の負担を減らせます。
・居住スペースの最大化:廊下を最小限にして水回りをコンパクトにまとめることで、浮いた面積をリビングや個室に回すことが可能です。
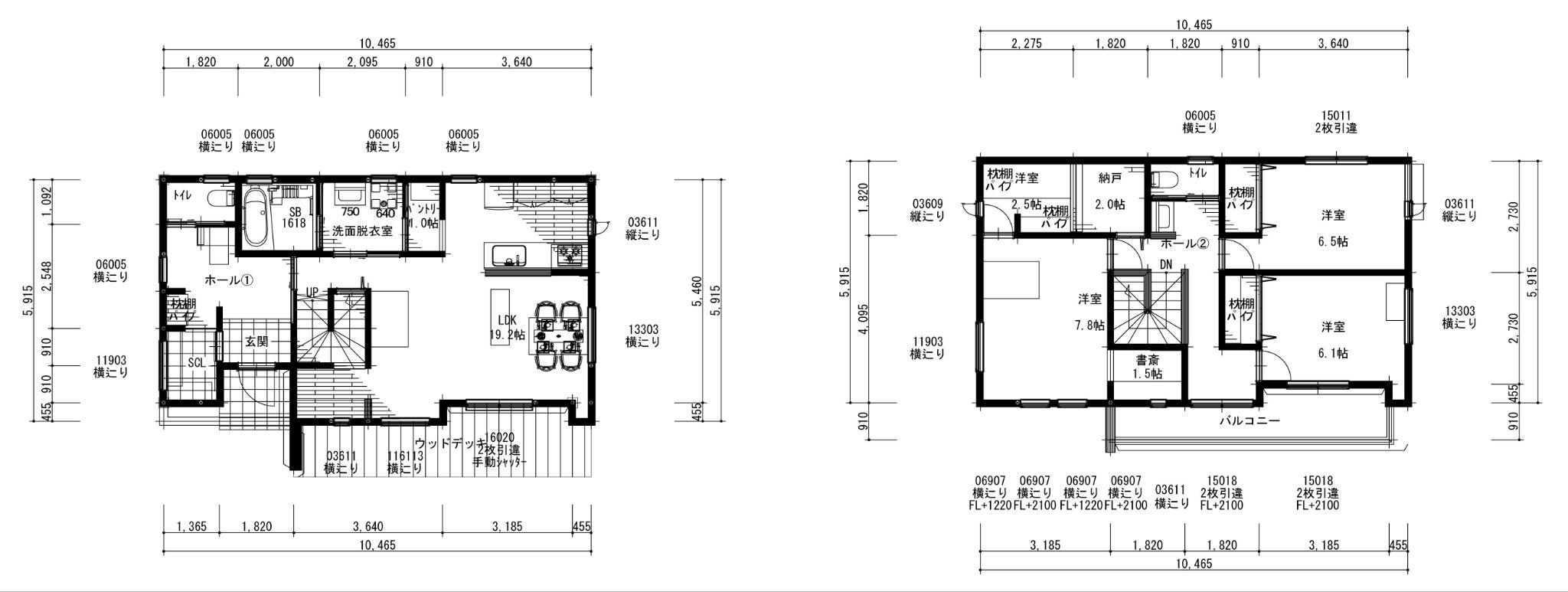
ポイント③:総2階を検討する
35坪の家を総2階(1階と2階の面積がほぼ同じ箱型の形状)にするメリットは、上下階の面積を揃えることで建築コストを抑えられることです。
以下は35坪の総2階の間取りです。

総2階で家を建てると建物の接地面積を抑えられる分、空いた土地に広い庭や駐車スペースを確保しやすくなります。
限られた敷地を最大限に活用できる、コストパフォーマンスの高い選択肢です。
ポイント④:天井の⾼さを調整する
35坪の住宅において、天井の高さは開放感を左右する大きな要素です。
家族が集まるリビングやダイニングの天井を高く設定すれば、圧迫感が抑えられ、実面積以上の広がりを感じる空間になります。
また、高さを活かして「スキップフロア(1つの階に異なる高さのフロアが設けられた間取り)」や「ロフト」を設けると、限られた床面積の中にプラスアルファの遊び心や収納スペースを生み出せます。
天井の高さを意識した設計は、動線や収納と連動させながら空間を有効活用できます。
新築35坪の家で押さえておきたい価格相場
35坪の家を建てる際、まず目安となるのが「本体工事費」です。
坪単価は50万〜100万円程度で設定されることが多いため、本体価格は1,750万円から3,500万円ほどが一般的です。
各坪単価で35坪の建物を建てた場合の価格は以下の表をご覧ください。
| 坪単価 | 35坪の建物価格 | 価格帯の特徴 |
|---|---|---|
| 50万円〜 | 1,750万円〜 | ローコスト住宅・シンプルな規格住宅 |
| 70万円〜 | 2,450万円〜 | 標準的な仕様 |
| 100万円〜 | 3,500万円〜 | こだわりの注文住宅 |
上記は本体工事費のみの目安です。
このほかに土地代、各種手数料、税金などが加算されるため、総予算はさらに余裕を見ておく必要があります。
35坪の住宅の価格相場は、地域や建材、デザイン、施工業者によって大きく異なります。
総予算を考える際は、建物価格の2〜3割増しを見込んでおくと安心です。
35坪の家を建てた方の声

35坪の広さを選んだからこそ叶った「暮らしのゆとり」についての声が多く寄せられています。実際に住んでみてわかった「本音」をまとめました。
開放感のある空間に満足
・4人家族で個室もLDKも十分。35坪は広すぎず狭すぎず、掃除などの管理もラクで、今の私たちには一番過ごしやすいサイズです。
・コンパクトな分、リビングを吹き抜けに。開放感があるので、奮発した大きめのソファを置いても窮屈にならず、お気に入りの空間になりました。
・建物を抑えた分、庭を広めに。外の景色を取り込む設計にしたので、季節を感じられて好評です。
家事のしやすさに感動
・家事効率を考えてキッチンと洗面所を隣にしました。これだけで毎日のバタバタが全然違います。将来を考えて収納を多めにしたのも正解でした。
・玄関に大きなシューズクロークを作ったり、収納を充実させたり。おかげで急に人が来ても、リビングをサッと片付けるだけで済むので助かっています。
コストと質のバランスに納得
・予算内で耐震や断熱にしっかりこだわることができました。広すぎない分、将来のメンテナンス代や光熱費も抑えられそうです。
・土地選びから苦労しましたが、35坪というサイズは周囲とのバランスが取りやすかったです。プライバシーを守りつつ、明るい家を予算内で建てられました。
これらの声からも、35坪という広さは、工夫次第で「ゆとり」と「使い勝手」を両立し、満足度の高い間取りを叶える絶妙なサイズといえそうです。
新築35坪の間取りでよくある質問
新築35坪の間取りでよくある質問をまとめます。
Q. 35坪の家は広いですか?何LDKにできますか?
35坪(約115平米)の間取りは、4人家族でもゆったり過ごせる、非常にバランスの良い広さです。
日本の平均的な住宅よりも一回り大きく、3LDK〜4LDKが主流ですが、工夫次第で5人家族でもゆとりのある5LDKも可能です。
ただし、土地の「建ぺい率」や「容積率」といったルールによって、建てられる建物の大きさは制限されます。
Q. 注文住宅で後悔するポイントは?
よく挙げられる後悔するポイントは、1位「間取り(動線)」、2位「収納」、3位「コンセントの配置」です。
これらの後悔を回避するために、以下の3点に注意すると失敗を防げます。
家事動線:キッチンと洗面所が遠いなど、日々の「動きにくさ」をなくす。
収納:「どこに何を置くか」を決めずに、とりあえず大きな物入れを作らない。
コンセント:家具を置いたら隠れた、数が足りない、という事態を想定しておく。
間取りの段階で、自分たちの生活をリアルにイメージし、一つひとつ丁寧に決めていくと、納得の家づくりにつながります。
新築35坪の家を建てる際の注意点
新築35坪の家を建てる際には、以下に注意しましょう。
耐久性とメンテナンス性を考慮する
目先の安さだけで選ばず、10年、20年先を見越した素材選びが大切です。
例えば、外壁に汚れに強い「サイディング」や、塗り替え回数を減らせる「タイル」を採用する、あるいは屋根に耐久性の高い「瓦」や「ガルバリウム」を選ぶことで、将来の「メンテナンス費用」を減らすことができます。
地盤や地域独自の規制を事前に調べる
理想の間取りを描く前に、その土地の「地盤の強さ」や「地域特有のルール」を調べることは何より重要です。ここを疎かにすると、以下のようなリスクに直結します。
・思わぬ追加費用:地盤が緩い場合、数百万円単位の「地盤補強工事」が急遽必要になることがあります。
・間取りの制限:「北側斜線制限(隣家の日当たりを守るルール)」などの規制により、希望していた3階建てや吹き抜けが作れないというケースもあります。
こうした「土地の個性」を早めに把握しておくことが、大幅な予算オーバーや設計のやり直しを防げます。
まとめ
35坪という広さは、工夫次第で「理想のこだわり」と「現実的な暮らしやすさ」を両立できるサイズです。この記事で紹介した新築の35坪の成功事例をまとめます。
・家族4人がゆったり暮らせる3LDK〜4LDKの間取り
・吹き抜けやスキップフロア、ロフトなどによる開放感
・独立ランドリールームや水回り動線の最適化
・総2階でコストを抑えつつ、住宅の性能や質を上げる
・大容量のシューズクロークなど充実した収納
・平屋なら平均以上のゆとりある贅沢な空間
これらをバランスよく整え、後悔のない間取りを形にしましょう。
【山陰で家づくりをお考えの方へ】
島根や鳥取で快適に暮らすには、厳しい冬の寒さや湿気への対策が欠かせません。全国共通の「おしゃれな間取り」をそのまま山陰で建ててしまい、冬の寒さや結露で後悔するケースは実は少なくないのです。
「TSKさんいん中央テレビ」の住宅部門が、地元のプロの視点でまとめた実例記事をぜひ参考にしてください。
以下の記事では、平屋はもちろん2階建てを検討中の方にも役立つ、山陰の気候に合わせたより具体的で安心な間取りについてご紹介しています。
35坪平屋の間取り成功例|島根・鳥取のプロが教える3LDK・4LDKの気候対策の実例
Today’s Person
山陰の家づくりを全力応援する住まいるマガジンのスタッフ記事です!
次回もお楽しみに!
記事
ハウマガ編集部